Jubilee Church

Fondation Cartier

Photo du Jubilee Church

À la Confluence de la Spiritualité et de l'Architecture. Au cœur de Rome, la Jubilee Church de Richard Meier se distingue comme une œuvre architecturale exceptionnelle, mêlant avec grâce la spiritualité traditionnelle et la modernité audacieuse.

Plongeons dans cet édifice qui transcende les conventions pour créer un lieu de culte d'une beauté singulière.

par Viktor Ghirardelli

Publié aujourd’hui | Temps de lecture 1 min

Genèse et Réalisation

Inaugurée en 2003 lors du Jubilé de l'Église catholique, la Jubilee Church à Rome est une réalisation magistrale de l'architecte américain renommé, Richard Meier.

Conçue pour répondre aux besoins liturgiques tout en capturant l'esthétique contemporaine, cette église incarne l'harmonie entre tradition et innovation.

Jubilee Church
Photo de face du Jubilee Church

Description Visuelle et Emplacement

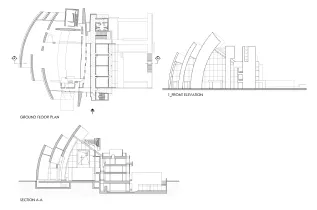
Située dans le quartier Tor Tre Teste, la Jubilee Church se distingue par ses lignes épurées et sa façade en travertin qui capture la lumière romaine de manière magistrale. Les volumes interconnectés symbolisent une Trinité moderne, offrant à l'intérieur un espace lumineux propice à la contemplation.

Le parvis et les jardins paysagers environnants complètent cette œuvre, créant un équilibre visuel harmonieux.

Galerie

Découvrez le Jubilee Church conçu par Richard Meier en explorant cette galerie d'images détaillée.

Jubilee Church
Photo du Jubilee Church de face
Jubilee Church
Photo du Jubilee Church de côté
Jubilee Church intérieur
Photo de l’intérieur du Jubilee Church
Jubilee Church sketch
Dessin de l’architecture du Jubilee Church